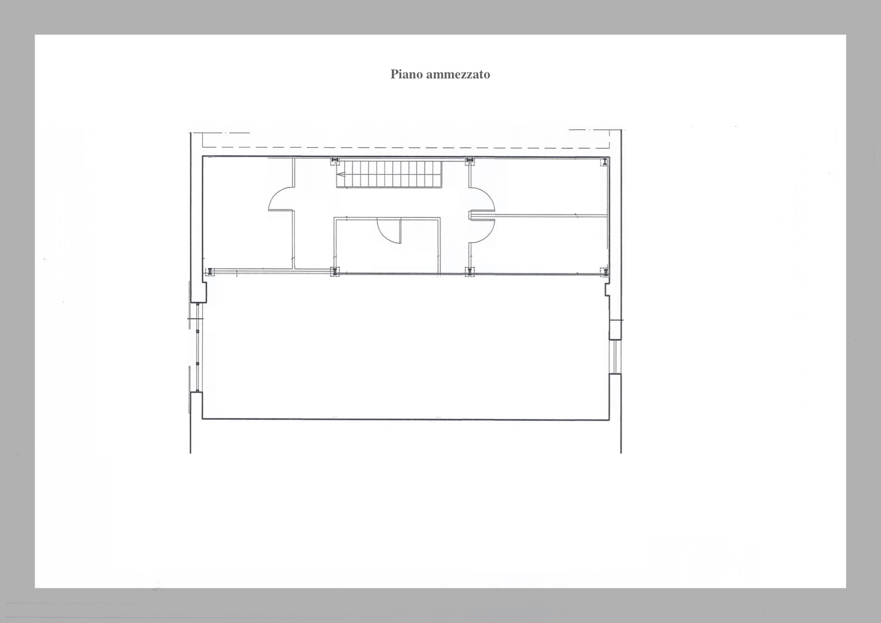
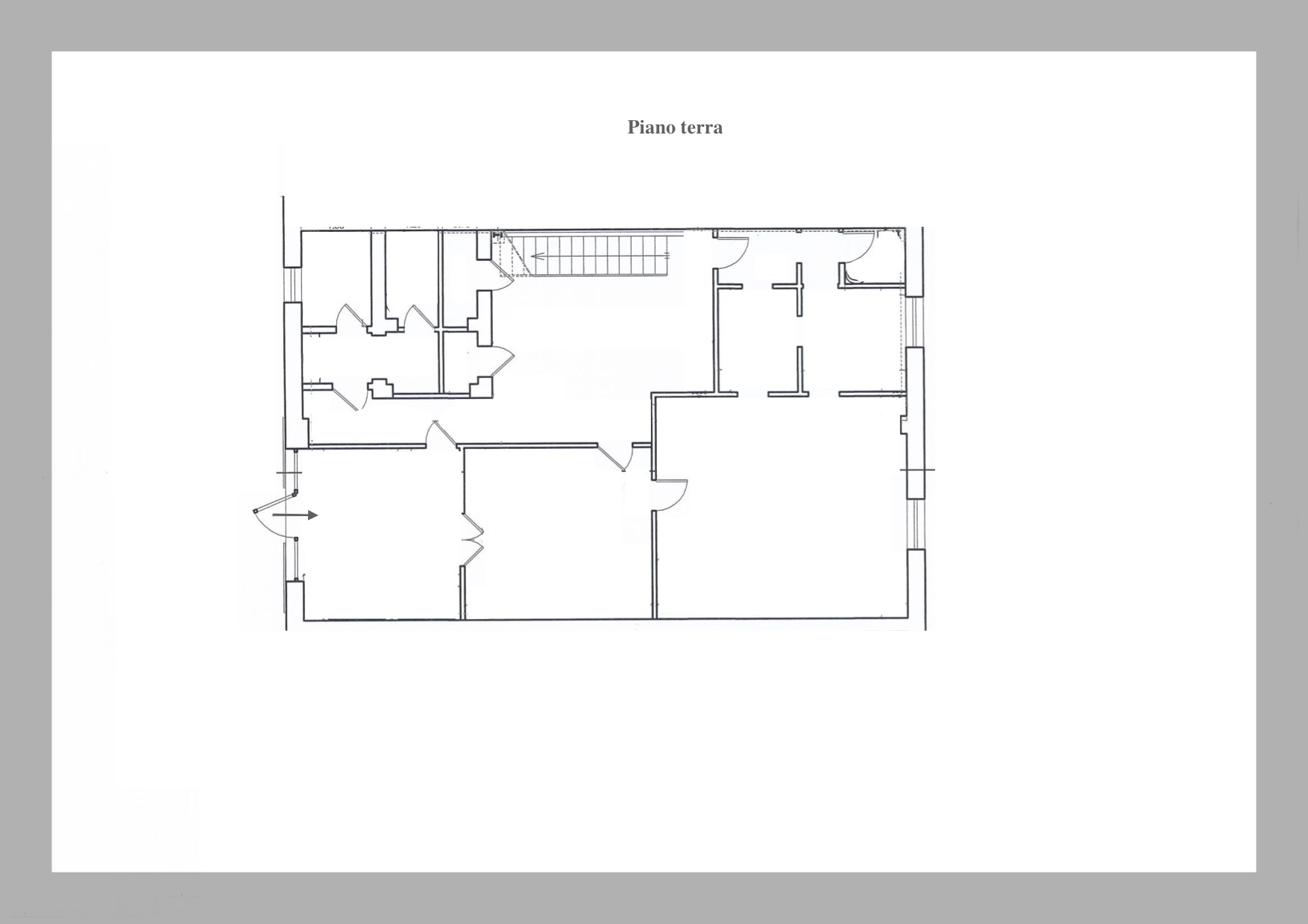
Panoramica
ID Immobile: O2551
- Locale commerciale
- 1
- 140 m²
Descrizione
A poche centinaia di metri dall’Arco di Traiano, centro urbano, ubicazione comoda e riservata, proponiamo per attività artigianali commerciali e/o direzionali capannone di mq.140 circa con annesso parcheggio dedicato.
Indirizzo
Apri su Google Maps-
Indirizzo: Via Ponticelli I^ Traversa, Benevento, BN, Italia
-
Città: Benevento
-
Area: Centro
Dettagli
Aggiornato il Aprile 13, 2026 alle 9:55 am-
ID Immobile O2551
-
Prezzo €115.000
-
Dimensioni 140 m²
-
Bagno 1
-
Tipologia Locale commerciale
-
Stato In vendita
Classe Energetica
-
Classe energetica: G
- A+
- A
- B
- C
- D
- E
- F
- | Classe energetica GG
- H
Calcolatore mutuo
Mensile
-
Anticipo
-
Importo del mutuo
-
Rata mensile del mutuo
